Lubelskie / Centrum / Lublin / ul. Żmigród
| Ogólne warunki | |
| Numer oferty: | 10/3769/OI |
| Rynek: | Wtórny |
| Rok budowy: | 1905 |
| Opis budynku | |
| Rodzaj budynku: | Kamienica |
| Stan budynku: | Bardzo dobry |
| Materiał: | Murowana |
| Winda: | Nie |
5 916.67 PLN/m2
SZCZEGÓŁOWY OPIS OFERTY
Trzypiętrowa kamienica z oficyną w centrum Lublina, ul. Żmigród.
Kamienica o powierzchni 340mkw, oficyna 260mkw. Działka 809mkw.
Kompleks budynków z przełomu XIX i XX w., po generalnym remoncie elewacji i wnętrza.
Do budynku przynależy: ogród, miejsca postojowe.
Opis budynku:
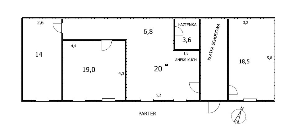
Czterokondygnacyjna kamienica, aktualnie podzielona na dwa lokale po 34mkw (parter i poddasze), oraz dwa lokale 67mkw, I i II piętro. Piwnica
Trzykondygnacyjna Oficyna, pięć lokali o powierzchniach 18; 88; 89; 92mkw, trzecia kondygnacja w poddaszu.
Kamienica usytuowana na ogrodzonej działce o powierzchni 809 m2. Rzuty kondygnacji dołączone do zdjęć.
Technologia budowy: czerwona cegła, mur o grubości 56 cm. Ściany działowe z czerwonej cegły, stropy belki drewniane i stalowe.
Opis lokalizacji: Kamienica usytuowana na Starym Mieście.
Dostępne media: kanalizacja, woda, telefon, prąd, światłowód.
Zapraszam.
Kontakt do biura

nr licencji: 11972