Lubelskie / Sławin / Lublin / ul. Skowronkowa
| Ogólne warunki | |
| Numer oferty: | 1386/3769/ODS |
| Rynek: | Wtórny |
| Powierzchnia użytkowa: | 216.50 m2 |
| Liczba pokoi: | 4 |
| Liczba pięter: | 1 |
| Rok budowy: | 2024 |
| Opis budynku | |
| Stan budynku: | Do wykończenia |
| Materiał: | Aerated |
14 780.60 PLN/m2
SZCZEGÓŁOWY OPIS OFERTY
Oferta wyłącznie w biurze Lokum
Proponujemy do sprzedaży nowoczesny parterowy dom wolnostojący położony w Lubinie przy ul. Skowronkowej.
Nieruchomość wyróżnia się modernistyczną bryłą budynku, dużą działką (ok.20ar) oraz niepowtarzalną lokalizacją, w sąsiedztwie lasu.
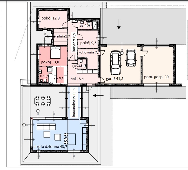
Wewnętrzny układ pomieszczeń podzielony został na trzy strefy: strefę dzienną z przestronnym salonem połączonym z kuchnią i jadalnią, wydzieloną częścią prywatną z sypialniami, łazienkami, garderobą oraz pralnią. W bryle budynku znajduje się garaż dwustanowiskowy wraz z kotłownią i pomieszczeniem gospodarczym.
Dom jest częściowo wykończony. Wnętrze i ogród wymaga jeszcze częściowych prac wykończeniowych, co pozwala dostosować aranżację nieruchomości pod indywidualne preferencje.
Nieruchomość usytuowana na działce o powierzchni 1985m2.
W sąsiedztwie las oraz nowa zabudowa jednorodzinna.
Dostępne media: prąd, gaz, woda z własnej studni, szambo (w najbliższym czasie planuje się położenie wodociągu oraz kanalizacji).
Ogrzewanie: gazowe oraz kominek z płaszczem wodnym. W całym domu ogrzewanie podłogowe.
Klimatyzacja. Rekuperacja.
Stolarka aluminowa oraz PCV.
Opis budynku:
Parterowy dom mieszkalny z 2024 roku.
Zbudowany z suporeksu, docieplony styropianem, dach płaski.
*Niniejsze Ogłoszenie ma charakter informacyjny i stanowi zaproszenie do zawarcia umowy (art. 71 KC); nie stanowi natomiast oferty handlowej w rozumieniu art. 66 1 KC
Kontakt do biura

nr licencji: 11972