Lubelskie / Sławin / Lublin / ul. Skowronkowa
| Ogólne warunki | |
| Numer oferty: | 1463/3769/ODS |
| Rynek: | Pierworny |
| Powierzchnia użytkowa: | 92.00 m2 |
| Liczba pokoi: | 4 |
| Liczba pięter: | 1 |
| Rok budowy: | 2025 |
| Opis budynku | |
| Stan budynku: | AboveConstruction |
| Materiał: | Inny |
899 000 PLN
9 771.74 PLN/m2
92.00 m2 / 4 pok.
9 771.74 PLN/m2
SZCZEGÓŁOWY OPIS OFERTY
Nieruchomość położona jest przy ul. Skowronkowej w dzielnicy Sławin.
Znajduje się na nowo projektowanym osiedlu.
Segment będzie gotowy do odbioru w I kwartale 2026 roku.
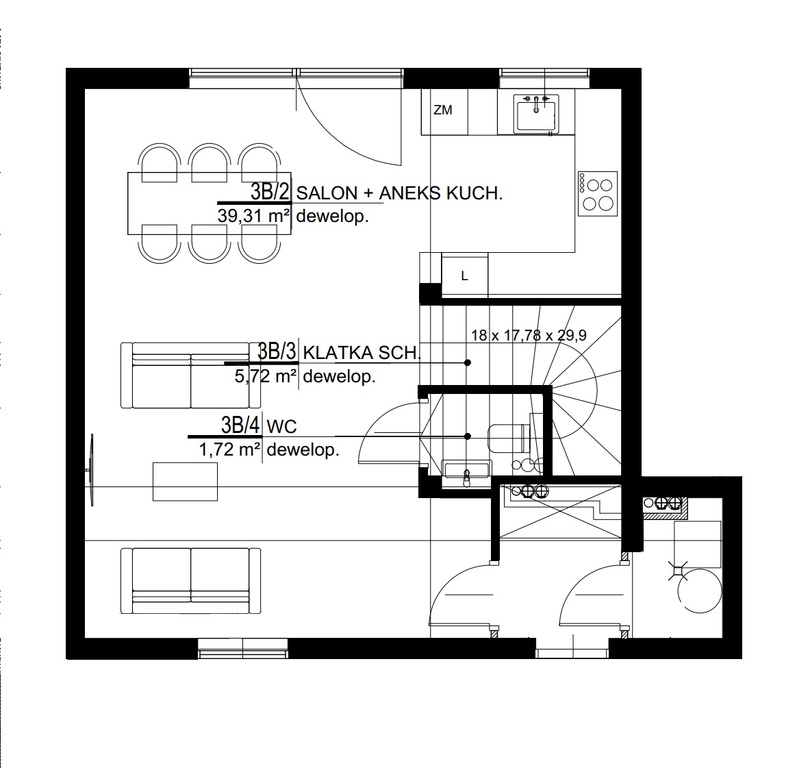
Segment składa się z:
Parter: salon z kuchnią; WC; kotłownia
Piętro: 3 pokoje; łazienka z WC
Media: wodociąg; prąd; kanalizacja;
Technologia: belit 24 cm + styropian 20 cm; stropy teriva; ogrzewanie podłogowe; pompa ciepła; wentylacja mechaniczna
Kontakt do biura

Artur Lepiarz
nr licencji: 11972
nr licencji: 11972