Lubelskie / Lublin
| Ogólne warunki | |
| Numer oferty: | 1486/3769/ODS |
| Rynek: | Wtórny |
| Powierzchnia użytkowa: | 400.00 m2 |
| Liczba pokoi: | 7 |
| Rok budowy: | 1999 |
| Opis budynku | |
| Stan budynku: | Bardzo dobry |
| Materiał: | Ceramika |
11 818.18 PLN/m2
SZCZEGÓŁOWY OPIS OFERTY
TYLKO U NAS
Rezydencja nie dla każdego.
Najważniejsze atuty:
1. LOKALIZACJA - północna strona miasta z pełną infrastrukturą handlowo-usługową i terenami zielonymi
2. DZIAŁKA - prawie 3000 mkw, zagospodarowana, z nasadzeniami, altanką z grillem, automatycznym nawadnianiem
3. BASEN - z pełnowymiarowym, całkowicie rozsuwanym zadaszeniem, pełną automatyką, o wymiarach 10x4,5 i głębokości 1,6m
4. SAUNA gorąca
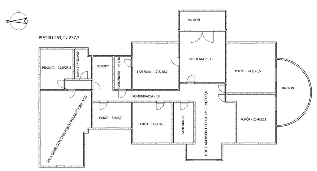
5. POKÓJ REKREACYJNY ponad 40-metrowy
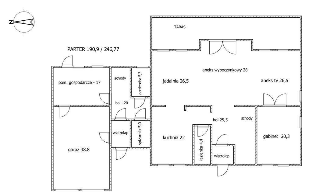
6. PRZESTRONNE POMIESZCZENIA - część dzienna to ponad 100 mkw, pokoje od 16,5 do 25 mkw; wysokość 2,9m, miejscami ponad 3m
7. GARAŻ na dwa auta - 38,8 mkw
8. MEDIA - woda i kanalizacja z sieci miejskiej, dodatkowo szambo do podlewania ogrodu, prąd, gaz, ŚWIATŁOWÓD
9. KLIMATYZACJA
10. POMPA CIEPŁA - ogrzewanie wody, po wyłączeniu ogrzewania gazowego
11. TECHNOLOGIA - pustak ceramiczny - dwie warstwy, podwójne docieplenie; dachówka ceramiczna
12. REMONT W 2018 - nowe trzyszybowe i siedmiokomorowe okna PCV, docieplenie fundamentów, nowa elewacja z dodatkowym grafitowym styropianem, nowa kostka...
13. FOTOWOLTAIKA - 10 kW
14. NISKIE KOSZTA UTRZYMANIA
Z pozostałymi atutami zapoznam na prezentacji, na którą zapraszam wszystkie poważnie zainteresowane zakupem osoby.
Rok budowy - 1999
dojazd asfaltowy
ZABEZPIECZENIA: alarm, monitoring wewnętrzny i zewnętrzny, drzwi antywłamaniowe, videodomofon, teren ogrodzony
Oferta idealna dla dużej lub rozwijającej się rodziny z dużymi potrzebami albo pod działalność gospodarczą po odpowiedniej adaptacji wnętrz.
W tej lokalizacji każdy chciałby mieszkać, ale nie każdy może. Dziś już praktycznie nie ma wolnych działek w okolicy a oferty sprzedaży nieruchomości zdarzają się rzadko. Zapraszam
Kontakt do biura

nr licencji: 11972