Lubelskie / Sławin / Lublin
| Ogólne warunki | |
| Numer oferty: | 1494/3769/ODS |
| Rynek: | Pierworny |
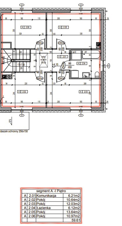
| Powierzchnia użytkowa: | 117.00 m2 |
| Liczba pokoi: | 5 |
| Liczba pięter: | 1 |
| Rok budowy: | 2025 |
| Opis budynku | |
| Stan budynku: | Stan deweloperski |
| Materiał: | Pustak |
6 040.27 PLN/m2
SZCZEGÓŁOWY OPIS OFERTY
Mamy w ofercie ciekawą ofertę dla rodziny, która ceni sobie komfort życia.
Dom w mieście [Sławin] daje możliwość łatwego korzystania z infrastruktury handlowo-usługowej przy jednoczesnym poczuciu prywatności oraz możliwości wypoczynku na "prywatnym świeżym powietrzu" :)
Nowoczesna bryła, cztery komfortowe pokoje na piętrze, przestronna część dzienne na parterze oraz wygodny garaż dwustanowiskowy wraz z dużą powierzchnią gospodarczą w piwnicy to dodatkowe atuty sprzedawanej nieruchomości.
REKUPERACJA
OGRZEWANIE GAZOWE, PODŁOGOWE na parterze oraz w górnej łazience; ogrzewany garaż
GUSTOWNA KOSTKA ORAZ OGRODZENIE
INSTALACA ALARMOWA
ŚWIATŁOWÓD
ZBIORNIK NA DESZCZÓWKĘ
POWIERZCHNIA MIESZKALNA TO prawie 120mkw
POWIERZCHNIA CAŁKOWITA [wraz z piwnicą] to ponad 220 mkw
POWIERZCHNIA DZIAŁKI - ponad 5 arów
TERMIN ODDANIA - CZERWIEC 2025
Zachęcam do kontaktu
Kontakt do biura

nr licencji: 11972