Lubelskie / Krasnystaw
| Ogólne warunki | |
| Numer oferty: | 1517/3769/ODS |
| Rynek: | Wtórny |
| Powierzchnia użytkowa: | 161.15 m2 |
| Liczba pokoi: | 5 |
| Rok budowy: | 2023 |
| Opis budynku | |
| Stan budynku: | Idealny |
| Materiał: | Pustak |
8 004.96 PLN/m2
SZCZEGÓŁOWY OPIS OFERTY
Urokliwa posiadłość dla prawdziwego konesera natury TYLKO U NAS. Działka o powierzchni przekraczającej 2 ha daje poczucie wolności i prywatności.
Wokół lasy i pola. Nieopodal rzeka.
Krasnystaw, oddalony o 4 km, natomiast daje bogatą infrastrukturę handlowo-usługową.
Najbliższy przystanek busów - ok 300 metrów
Najbliższy sklep - ok 1,5 km
Do szkoły mamy nieco ponad 5 km.
Działka zabudowana jest murowaną i podpiwniczoną stodołą, budynkiem gospodarczym oraz przestronnym parterowym domem mieszkalnym, wybudowanym w 2023 roku.
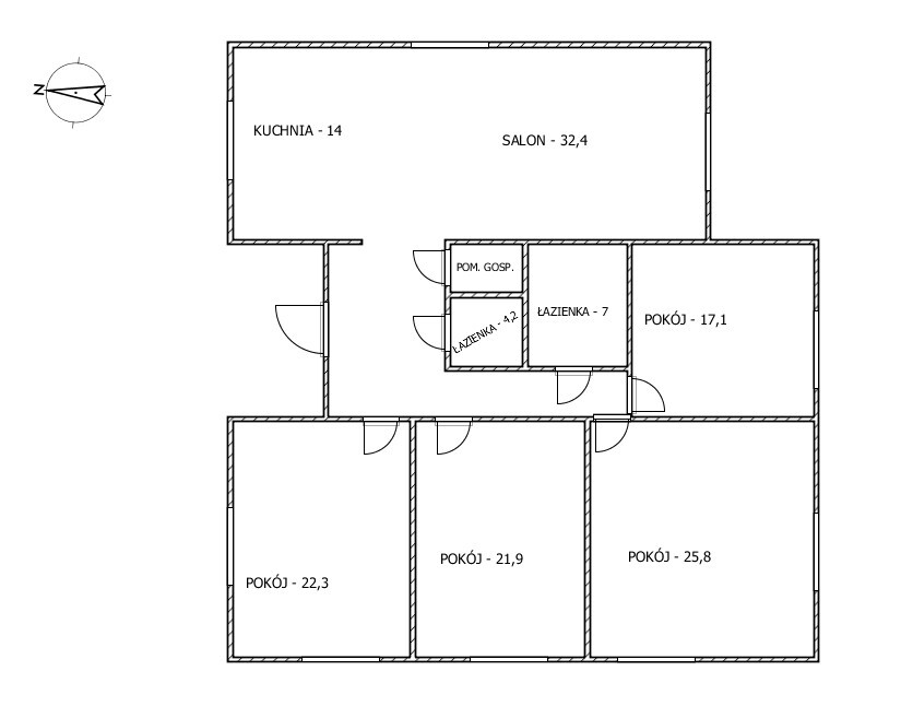
Na jednej kondygnacji znajduje się otwarta część dzienna [salon z nowoczesną kuchnią] o powierzchni przekraczającej 50 mkw, 4 pokoje [od 17,5 do 25 mkw każdy], dwie łazienki [4,5 oraz 7 mkw]. Wysokie poddasze daje możliwość adaptacji pod cele mieszkalne, biurowe lub rozrywkowe...
OKNA - PCV 3-szybowe
TECHNOLOGIA BUDOWY - pustak, grafitowy styropian 15cm; blachodachówka
rozprowadzona INSTALACJA REKUPERACJI
MEDIA - prąd, woda z sieci, przydomowa oczyszczalnia ścieków, siła
OGRZEWANIE - pompa ciepła, 100% podłogowe
POWIERZCHNIA UŻYTKOWA - 161,15 mkw
DROGA DOJAZDOWA - utwardzona
W cenę wliczone są wszystkie widoczne na zdjęciach meble w zabudowie oraz wolnostojące.
Zapraszam na prezentację
Kontakt do biura

nr licencji: 11972