Lubelskie / Czechów / Lublin / ul. Aleksandra Zelwerowicza
| Ogólne warunki | |
| Numer oferty: | 3798/3769/OMS |
| Rynek: | Pierworny |
| Liczba pokoi: | 4 |
| Liczba pięter: | 1 |
| Rok budowy: | 2025 |
| Opis budynku | |
| Rodzaj budynku: | Niski blok |
| Stan budynku: | Idealny |
| Materiał: | Mieszane |
| Winda: | Nie |
9 740.26 PLN/m2
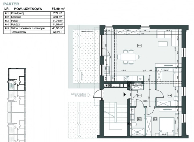
SZCZEGÓŁOWY OPIS OFERTY
Atrakcyjne mieszkanie czteropokojowe zlokalizowane na parterze w nowo budowanym kameralnym budynku w Lublinie na Czechowie przy ul. Zelwerowicza.
Mieszkanie o powierzchni 76,99mkw, składa się z:
salonu połączonego z kuchnią (31mkw),
trzech sypialni (11,74mkw; 11,09mkw; 10,5mkw)
łazienki (4,94mkw)
przedpokój
Do mieszkania przynależy ogódek oraz zamykany garaż dwustanowiskowy o powierzchni 32,45mkw (dodatkowo płatny 70tys. zł)
Wystawa okien: północ, wschód, zachód
Do największych atutów mieszkania należy: praktyczny rozkład pomieszczeń, atrakcyjna cena, doskonała lokalizacja oraz niska zabudowa.
Media: ogrzewanie oraz woda ciepła - pompa ciepła, kanalizacja, prąd.
W całym mieszkaniu, w standardzie ogrzewanie podłogowe.
Instalacja wentylacyjna nawiewno-wywiewna z odzyskiem ciepła i chłodzeniem.
Na dachu zainstalowano panele fotowoltaiczne zapewniające energię elektryczną dla części wspólnych budynku.
Standard: podłoga-posadzka cementowa; ściany-tynk gipsowy; okna- PCV, trzyszybowe; drzwi zewnętrzne - antywłamaniowe.
Kontakt do biura

nr licencji: 11972