Lubelskie / Czuby / Lublin
| Ogólne warunki | |
| Numer oferty: | 4144/3769/OMS |
| Rynek: | Wtórny |
| Liczba pokoi: | 3 |
| Piętro: | 3 |
| Liczba pięter: | 4 |
| Rok budowy: | 1985 |
| Czynsz administracyjny: | 700.00 PLN |
| Opis budynku | |
| Rodzaj budynku: | Niski blok |
| Stan budynku: | Bardzo dobry |
| Materiał: | Wielka Płyta |
| Winda: | Nie |
9 183.67 PLN/m2
SZCZEGÓŁOWY OPIS OFERTY
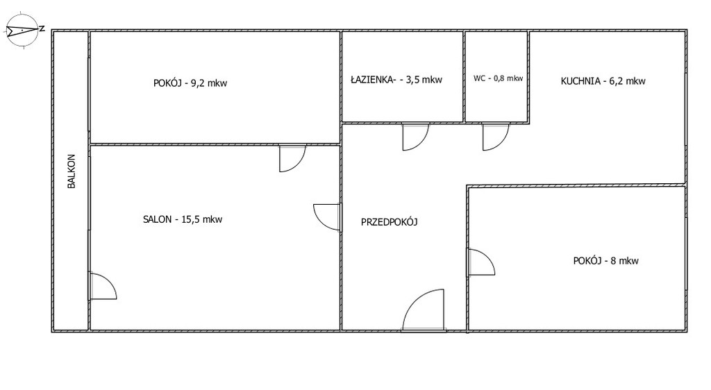
Mieszkanie trzypokojowe, dwustronne z oddzielną kuchnią.
Według oryginalnego projektu sprzedawany lokal składał się z dużego salonu [25mkw] , pokoju, kuchni, łazienki i wc.
Obecnie z salonu został wydzielony, za pomocą ścianki karton-gips, dodatkowy pokój.
Rozkład funkcjonalny. Wnętrza widne.
Za oknem zieleń i przestrzeń!!!
W pobliżu bogata infrastruktura handlowo-usługowa, dużo terenów zielonych i względnie dobre warunki parkingowe.
Mieszkanie zadbane, w którym można zamieszkać bez większych nakładów finansowych. Jednak z racji nowych upodobań estetycznych, raczej wymaga własnej aranżacji.
Okna PCV
Na podłogach panel.
Ogrzewanie i ciepła woda - LPEC
Czynsz - 700zł
Budynek czteropiętrowy z 1984 roku
Piętro 3/4 [bez windy]
Do mieszkania przynależy duży balkon [od strony południowej] oraz piwnica [ok 3mkw].
Kontakt do biura

nr licencji: 11972