Lubelskie / Wrotków / Lublin
| Ogólne warunki | |
| Numer oferty: | 4150/3769/OMS |
| Rynek: | Pierworny |
| Liczba pokoi: | 2 |
| Piętro: | 2 |
| Liczba pięter: | 6 |
| Rok budowy: | 2026 |
| Opis budynku | |
| Rodzaj budynku: | Niski blok |
| Stan budynku: | Bardzo dobry |
| Materiał: | Mieszane |
| Winda: | Tak |
9 990.00 PLN/m2
SZCZEGÓŁOWY OPIS OFERTY
Kupujący nie płaci prowizji i podatku PCC
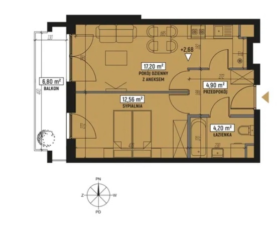
Funkcjonalne dwupokojowe mieszkanie o powierzchni 38,86m2 w nowej inwestycji w Lublinie na Wrotkowie.
Rozkład pomieszczeń:
- salon połączony z kuchnią,
- sypialnia (12,96mkw),
- łazienka,
- przedpokój.
Do mieszkania przynależy przestronny balkon (ok.7mkw).
Możliwość dokupienia miejsca postojowego (zewnętrznego 29 tys. lub w garażu podziemnym 45 tys.) oraz komórki lokatorskiej (3500zł/mkw).
Wystawa okien: zachód.
Termin realizacji - II kwartał 2026 r.
Do największych atutów mieszkania należy: praktyczny i funkcjonalny rozkład pomieszczeń, atrakcyjna cena oraz doskonała lokalizacja, w pobliżu Zalewu Zemborzyckiego oraz Lasu Dąbrowa, a jednocześnie z dogodnym dojazdem do centrum miasta.
Kontakt do biura

nr licencji: 11972